Tính Toán Và Thiết Kế Cơ Cấu Nâng Của Cẩu Trục 11T

MỤC LỤC

TÍNH TOÁN VÀ THIẾT KẾ CƠ CẤU NÂNG

  • Phân tích chung
    • Tính toán cơ cấu nâng
      • Đường kính tang

        Do đó, cơ cấu nâng phải được chế tạo nghiêm chỉnh với chất lượng tốt của tất cả các khâu, khác với cơ cấu bằng tay, ở đây dùng tang kép quấn một lớp cáp, có cắt rãnh đảm bảo độ bền lâu cho cáp.Bộ truyền phải được chế tạo dưới dạng hộp giảm tốc kín, ngâm dầu, bôi trơn tốt, các ổ trục thường dùng ổ lăn.Thiết bị phanh hãm thường dùng là phanh má thường đóng. Vì cơ cấu làm việc với động cơ điện, vận tốc cao, ta chọn cáp để làm dây cho cơ cấu là loại dây có nhiều ưu điểm hơn các loại dây khác như xích hàn, xích tấm và loại dây thông dụng nhất trong ngành máy trục hiện nay. Để chọn phanh làm việc có hiệu quả và an toàn ta dựa vào giá trị momen phanh yêu cầu Mph, momen phanh của cơ cấu nâng được xác định từ điều kiện giữ vật nâng treo ở trạng thái tĩnh với hệ số an toàn n.

        Hình 3.2- Sơ đồ nguyên lý pa lăng
        Hình 3.2- Sơ đồ nguyên lý pa lăng

        M mvx

        Thiết kế bộ truyền bánh răng trụ cấp chậm

        Kiểm nghiệp sức bền bánh răng khi chịu quá tải đột ngột trong thời gian ngắn.

        Xác định kích thước của trục

        • Các bộ phận khác của cơ cấu nâng

          Sử dụng loại khớp vòng đàn hồi, loại khớp này giảm được chấn động va dập khi mở máy, khi phanh đột ngột, phía nửa bên hộp giảm tốc hộp giảm tốc kết hợp với bánh phanh. Momen xoắn lớn nhất mà khớp phải chịu có thể xuất hiện trong hai trường hợp khi mở máy nâng vật và khi phanh hãm vật đang nâng. Một phần momen Md tiêu hao trong việc thêm quán tính của các chi tiết mở máy bên phía trục động cơ (roto động cơ và nửa khớp )còn lại mới truyền qua khớp.

          Móc treo được tiêu chuẩn hoá về hình dạng và tải trọng, nếu không sử dụng theo tiêu chuẩn thì phải tính toán và kiểm tra. Sử dụng cách kẹp cáp thông thường tức là ở mỗi đầu cáp dùng ba tấm cặp tương ứng với đường kính dây cáp là dc=21mm, bước cắt rãnh t =20mm,sử dụng vít cấy M20. Do có ma sát giữa mặt tang với các vòng cáp an toàn Lực tính toán đối với cáp xác định theo công thức 2-16[1].

          Ổ sử dụng lắp trên trục tang là ổ bi đỡ lòng cầu hai dãy, trục hộp giảm tốc làm liền khớp răng (Do kết cấu hộp giảm tốc tương đối lớn đồng thời tang dài trong khi muốn thiết kế cho kích thước của xe lăn là nhỏ do vậy lựa chọn phương án chế tạo trục ra của hộp giảm tốc gắn liền khớp răng ). Trục cần được kiểm tra tại các tiết diện có khả năng có ứng suất lớn nhất, do kết cấu trục tại vị trí D và C có lắp mayơ do đó lấy kích thước trục tại những vị trí này là dD. Để trục làm việc an toàn ta phải tiến hành kiểm tra trục tại tiết diện nguy hiểm (có ứng suất tập trung lớn nhất ). Tại tiết diện A-A có đường kính 85 mm. Ứng suất uốn lớn nhất :. Số giờ làm việc tổng cộng được xác định. Số chu kỳ tổng cộng:. Số chu kỳ làm việc tương ứng với các tải trọng Q1;Q2;Q3. Số chu kỳ làm việc tương đương. Giới hạn mỏi tính toán:. Hệ số tập trung ứng suất kσ=1. trong đó σm là ứng suất trung bình trong chi tiết coi σm=0. Tại tiết diện B-B có đường kính 60mm. Momen uốn tại vị B. mm Ứng suất uốn lớn nhất:. Số giờ làm việc tổng cộng được xác định. Số chu kỳ tổng cộng:. Số chu kỳ làm việc tương ứng với các tải trọng Q1;Q2;Q3. Số chu kỳ làm việc tương đương. Hệ số chế độ làm việc:. Giới hạn mỏi tính toán:. Ổ bên trái trục tang chọn ổ bi đỡ lòng cầu hai dãy cho phép độ không đồng tâm giữa hai ổ và có hệ số khả năng làm việc cao, đường kính trục lắp ổ tại đây là d = 85mm.Tải trọng lớn nhất tác dụng lên ổ là tải trọng hướng tâm, bằng phản lực. Tải trọng lớn nhất lên ổ trong trường hợp không có lực chiều trục. tải trọng tương đương tác dụng lên ổ xác định theo công thức 8-8[6]).

          Ứng suất uốn sẽ thay đổi theo chu kỳ đối xứng, ứng xoắn do tính chất làm việc hai chiều của cơ cấu nên cũng xem như thay đổi theo chu kỳ đối xứng. Ngoài lực Pt, trong mặt phẳng ngang trục còn bị uốn bởi lực di chuyển bánh xe (~1/2 lực cản chuyển động xe lăn ) song trị số lực này nhỏ, nên bỏ qua. -Ổ trục làm với tải trọng thay đổi tương ứng với các tải trọng tác dụng lên bánh xe trong từng thời gian làm việc của cơ cấu di chuyển, như đã phân tích như trên trục bánh xe.

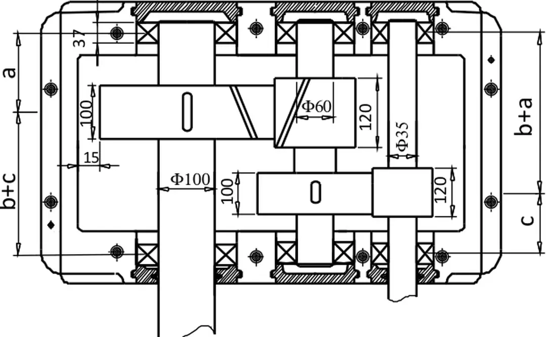
          Hình 3.6 - Sơ đồ các kích thước của hộp giảm tốc
          Hình 3.6 - Sơ đồ các kích thước của hộp giảm tốc

          TÍNH TOÁN CƠ CẤU DI CHUYỂN CẦU TRỤC Các số liệu ban đầu

            Chọn loại bánh xe hình trụ có hai thành bên với các kích thước Dbx=710mm. Tải trọng tác dụng lên bánh xe gồm có: Trọng lượng bản thân cầu Gc, tải trọng lớn nhất tác dụng lên bánh xe A khi xe lăn có vật nâng tại một bên cầu. Tải trọng nhỏ nhất tác dụng lên bánh xe A(và D) khi không có vật nâng tại đầu cầu bên phải.

            Tương ứng với chế độ làm việc của cơ cấu là trung bình CĐ25%, sơ bộ chọn động cơ điện. -Gia tốc lớn nhất cho phép đảm bảo hệ số an toàn bám Kb=1,2; tính cho trường hợp lực bám ít nhất (khi không có vật). Như vậy động cơ đã chọn thoả mãn điều kiện về lực bám, động cơ hoạt động an toàn.

            Theo sơ đồ cơ cấu di chuyển cầu ta dùng hộp giảm tốc bánh răng trụ đứng.

            Hình 4.1 – Sơ đồ di chuyển cầu trục
            Hình 4.1 – Sơ đồ di chuyển cầu trục

            TÍNH KẾT CẤU KIM LOẠI CỦA CẦU TRỤC

            • Xác định kích thước tiết diện của dầm chính

              -Trường hợp phối hợp tải trọng thứ nhất: dưới tác dụng của các tải trọng chính do trọng lượng vật nâng, trọng lượng xe lăn và trọng lượng bản thân cầu gây ra. -Trường hợp phối hợp tải trọng thứ hai: Dưới tác dụng của tải trọng chính đã kể trên và của các tải trọng phụ do lực quán tính lớn nhất có thể xảy ra khi phanh hay mở cầu trục và xe lăn. Trong đó :e = 0,42m -khoảng cách từ trọng tâm của cơ cấu di chuyển đến trọng tâm của tiết diện dầm.

              Xác định ứng suất ở tiết diện dầm chính do trọng lượng của xe lăn cách tiết diện giữa của dầm một đoạn a/2. Lực quán tính này đặt ở đầu ray và tạo thành mômen xoắn phụ, do Momen này nhỏ nên trong thực tế có thể bỏ qua. Tiết diện này được tính theo lực cắt lớn nhất khi xe lăn ở sát gối tựa và mômen uốn do trọng lượng của cơ cấu di động cầu trục gây ra.

              Hệ số an toàn ổn định cho phép theo trường hợp phối hợp tải trọng thứ nhất độ ổn định của thanh theo trường hợp phối hợp tải trọng thứ hai. Mômen uốn khi bánh xe lăn nằm giữa hai thanh giằng có kể đến độ cứng của ray và thanh biên trên. Khi tính dầm cuối theo trường hợp phối hợp tải trọng ta tính ứng suất theo lực quán tính lớn nhất có thể.

              Giã sử xe lăn ở vị trí đầu cầu, và cầu ở giữa dầm, thì dầm chịu lực tác dụng lớn nhất vậy ta lấy tại vị trí đó để tính tiết diện dầm (Hình 4.4).

              Hình 5.1 – Tiết diện ngang của dầm chính cầu
              Hình 5.1 – Tiết diện ngang của dầm chính cầu

              HƯỚNG DẪN AN TOÀN SỬ DỤNG MÁY

                Với cổng trục lăn do có nhiều bộ phận máy lắp với nhau và được đặt trên cao do vậy cần phải thường xuyên kiểm tra để kịp thời phát hiện những hư hỏng như lỏng các mối ghép ,rạn nứt tại các mối hàn do thời gian sử dụng lâu …. Đối với các chi tiết máy chuyển động như bánh xe ,trục quay phải có vỏ bọc an toàn nhằm ngăn những mảnh vỡ văng ra nếu có sự cố khi chi tiết máy hoạt động. Tất cả những người điều khiển máy làm việc hay phục vụ máy trong phạm vi làm việc của máy đều phải học tập các quy định về an toàn lao động có làm bài kiểm tra và phải đạt kết quả.

                Trong khi máy làm việc công nhân không được đứng trên vật nâng hoặc bộ phận mang để di chuyển cùng với vật cùng như không được đùng dưới vật nâng đang di chuyển. Bước thữ tĩnh :treo vật nâng có trọng lượng bằng 1,25 lần trọng lượng nâng danh nghĩa của cầu trục thiết kế và để trong thời gian từ 10 đến 20 phút. Bước thử động :Treo vật nâng có trọng lượng bằng 1,1 trọng lượng nâng danh nghĩa sau đó tiến hành mở máy nâng, di chuyển, hạ vật, mở máy đột ngột, phanh đột ngột.

                Trong công tác an toàn sử dụng cổng trục người quản lý có thể cho lắp thêm các thiết bị an toàn nhằm hạn chế tối đa tai nạn xảy ra cho công nhân khi làm việc. Để đảm bảo an toàn trong việc vận hành cổng trục yêu cầu đối với người sử dụng ngoài việc chấp hành đầy đủ các quy định về an toàn lao động còn phải nắm vững được nguyên tắc hoạt động và cách điều khiển máy. Khi ấn nút A5, nếu lúc này xe lăn đang ở cuối hành trình tới (B5 bị tác động ) Hoặc ấn nút A6 đang đóng (xe lăn đang lùi) khi đó công tắc tơ K5 không có điện.

                Giả sử xe lăn không ở cuối hành trình và nút ấn A6 không bị tác động thì khi ta ấn nút A5 công tắc tơ K5 có điện, tiếp điểm K5 trên mạch chính đóng.

                Hình 6.1 - Sơ đồ hệ thống điều khiển cầu trục lăn
                Hình 6.1 - Sơ đồ hệ thống điều khiển cầu trục lăn