Phân tích và thiết kế hệ thống điều khiển biến tần cho động cơ thang máy

MỤC LỤC

Phân loại thang máy 1. Phân loại theo công dụng

Đặc điểm công nghệ và các yêu cầu về truyền động 1. Đặc điểm công nghệ

Tốc độ di chuyển trung bình của thang máy có thể tăng bằng cách giảm thời gian mở máy và hãm máy nghĩa là tăng gia tốc, nhưng khi gia tốc lớn sẽ gây cảm giác khó chịu, bởi vậy gia tốc tối ưu là a <= 2(m/s2). - Tối ưu về chiều chuyển động: Giả sử buồng thang đang chuyển động theo chiều đi lên thì nó sẽ xử lý tất cả các lệnh ở trên đó, còn các lệnh ở thấp hơn nó sẽ lưu lại và xử lý sau khi đã thực hiện hết hành trình đi lên và.

1.2: Đồ thị quãng đường, vận tốc, gia tốc và độ giật
1.2: Đồ thị quãng đường, vận tốc, gia tốc và độ giật

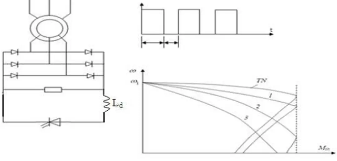
Thay đổi tốc độ và đảo chiều bằng cách thay đổi điện áp phần ứng

    Trong phương pháp điều khiển chung mặc dù đảm bảo Ed2 Ed1 tức là không xuất hiện giá trị dòng cân bằng song giá trị tức thời của suất điện động của các bộ chỉnh lưu là ed1(t) và ed2(t) luôn khác nhau do đó vẫn xuất hiện thành phần xoay chiều của dòng điện cân bằng và để hạn chế dòng điện cân bằng này thường dùng các cuộn kháng cân bằng Lcb. Đặc tính cơ điều chỉnh của hệ nối tầng van điện được dựng qua việc thay đổi góc điều khiển của nghịch lưu được dựng như hình vẽ; trong đó do ảnh hưởng của điện trở stato, điện trở mạch một chiều và điện kháng tản của máy biến áp (MBA) cũng như sụt áp do chuyển mạch của nghịch lưu và chỉnh lưu nên các đặc tính có độ cứng và mô-men tới hạn nhỏ hơn độ cứng và mô-men tới hạn của đặc tính tự nhiên.

    2.8. Sơ đồ nguyên lí và đặc tính cơ của phương pháp
    2.8. Sơ đồ nguyên lí và đặc tính cơ của phương pháp

    PHÂ

    Phân tích lựa chọn bộ biến tần cho động cơ

      Ngày nay đa số chỉnh lưu là không điề , vì điều chỉnh điện áp một chiều trong phạm vi rộng sẽ làm tăng kích thước của bộ lọc và làm giảm hiệu suất bộ biến đổi. Trong các bộ biến đổi công suất lớn, người ta thường dùng chỉnh lưu bán điều khiển với chức năng làm nhiệm vụ bảo vệ cho toàn hệ thống khi quá tải. Nguồn cung cấp cho nghịch lưu này phải là nguồn dòng để đảm bảo giữ dòng một chiều ổn định, vì vậy nếu nguồn là sức điện động thì phải có điện cảm đầu vào đủ lớn hoặc đảm bảo điều kiện trên theo nguyên tắc điều khiển ổn định dòng điện.

      Điều này dẫn đến dạng sóng của dòng điện các pha sau bộ nghịch lưu có dạng chữ nhật nếu bỏ qua giai đoạn chuyển mạch, điện áp ra có dạng sin nhưng mang các đỉnh nhọn ở thời điểm chuyển mạ. , cuộn dây ngăn các biến thiên đột ngột của dòng điện nên truyền động này rất thích hợp đối với những nơi cần tránh biến thiên đột ngột của mô- men trên trục động cơ. Hiện nay với phương pháp (biến điệu độ rộng xung) áp dụng cho các bộ nghịch lưu điện áp, cho phép các dạng sóng gần sin hơn và vì vậy nâng cao được chất lượng điều chỉnh.

      Những đặc điểm đó đưa đến khả năng ứng dụng bộ biến tần nguồn áp trong truyền động yêu cầu cao về độ chính xác điều chỉnh, chiếm ưu thế trong truyền động công suất nhỏ và truyền động nhiều động cơ hoạt động chính xác và đồng bộ.

      Hình 3.1: Sơ đồ khối biến tần gián tiếp
      Hình 3.1: Sơ đồ khối biến tần gián tiếp

      Phân tích lựa chọn sơ đồ bộ biến tần

        Đặc điểm của loại biến tần này là nguồn cấp cho BBĐ là nguồn sức điện động với nội trở nhỏ. Biến tần nguồn áp với nguồn 1 chiều đầu vào không điều chỉnh hay còn gọi là biến tần nguồn áp biến điệu bề rộng xung là dạng biến tần được ứng dụng phổ biến nhất hiện nay. Với phần nghịch lưu nếu động cơ công suất nhỏ ta dùng MOSFET,với công suất trung bình và lớn dùng.

        Như sơ đồ hình vẽ 3.6 gồm cả chỉnh lưu điot và nghịch lưu IGBT có thể được chế tạo dưới dạng module với kích thước nhỏ gọn.Vì chỉnh lưu đầu vào dùng điot nên sơ đồ không có khả năng trao đổi công suất với lưới.

        Cấu trúc của hệ thống điều khiển biến tần

        +Khâu khuyếch đại xung:Có nhiệm vụ khuyếch đại từng xung từ bộ phân phối xung đưa đến kích mở IGBT.Ngoài ra còn sử dụng bộ ghép quang nhằm cách ly mạch điều khiển và mạch động lực.

        Sơ đồ cấu trúc mạch điều khiển biến tần

        - Sau khi xác định được tần số điều khiển mới, bảng sin mới được tính lại sao để giữ cho tỷ số U/f ở đầu ra không đổi.

        Thiết kế tính chọn các phần tử hệ thống

          Chíp SAB 80C166 là một vi xử lý 16bit có tốc độ xử lý cao và nhiều khâu phụ cận phục vụ cho đối tượng là điều khiển tự động trong công nghiệp.Đặc biệt thanh ghi Capture/Compare(ghi nhận/so sánh) rất phù hợp cho việc áp dụng thuật toán điều chế véc tơ không gian(SVPWM) mà không cần mở rộng thêm phần cứng bên ngoài vi điều khiển.Việc ghép vi điều khiển với biến tần được thực hiện như hình vẽ. Khi thanh ghi đồng hồ T0 đếm tiến,giá trị T0 luôn được so sánh với giá trị các thanh ghi CC0,CC1,CC2,CC8,CC9 và CC10.Các bộ so sánh Comp có nhiệm vụ phát hiện thời điểm trùng nhau của các giá trị,khi đó mở cửa ra tương ứng P2.0,P2.1 hoặc P2.2 sẽ bị đảo trạng thái.Timer T1 là một thanh ghi 16bit đếm đến 1 lúc nào đó sẽ tràn giá trị,ngay lập tức vi xử lý phát tín hiệu ngắt T0IR(IR:interrupt).T0 sẽ nhận được giá trị ban đầu cho chu kỳ đếm tiếp theo từ thanh ghi T0REL.Giả sử T0REL chỉ được gắn một lần duy nhất giá trị ban đầu Treload=Tx ta sẽ thu được quá trình đếm lặp đi lặp lại của T0 với tần số cắt xung mong muốn fx=1/Tx.Để việc đảo trạng thái ở các cửa ra phù hợp với thuật toán điều chế,ta coi các giá trị cần đưa tới thanh ghi Capture/Compare như trong hình 4.4. Cấu trúc phần cứng ở hình 3.3 và hình 3.4 cho phép điều chế trong trong phạm vi khung thời gian ổn định.Từ đó vi xử lý tính được thời gian nạp vào thanh ghi để đóng ngắt các van biến tần theo thuật toán điều chế véctơ không gian.

          IGBT là phần tử bán dẫn có tính năng ưu việt như khả năng đóng cắt nhanh,công suất điều khiển cực nhỏ,thay thế cho các transistor công suất thông thường.Vì thế, điều kiện khóa mở của nó có những yêu cầu đặc biệt. Các vi mạch chuyên dụng phục vụ cho khâu tạo xung điều khiển cuối cùng này gọi là các driver.Tuy nhiên,do thời gian khóa của IGBT bị kéo dài và khi quá tải,có thể bị kéo ra khỏi chế độ bão hòa,tổn thất trên phần tử có thể tăng vọt,gây phá hỏng phần tử.Chính vì vậy,driver cho IGBT thường là các mạch lái (hybrid) – tức là một driver bình thường kết hợp các mạch bảo vệ chống quá tải.Đặc biệt,những driver cho IGBT công nghiệp là những mạch ghép phức tạp để đảm bảo an toàn cho van bán dẫn trong mọi chế độ làm việc. IGBT sử dụng trong các mạch nghịch lưu có tần số đóng cắt cao từ 2 đến hàng chục nghìn kHz.Sự cố thường xảy ra nhất là quá dòng ngắn mạch từ phía tải hoặc từ phía phần tử đóng cắt.Vì vậy,để điều khiển và bảo vệ IGBT, ta sử dụng IC chuyên dụng HCPL- 316J.

          Tín hiệu DESAT được lấy từ Collector qua diot DDESAT qua một mạch lọc tần số thấp gồm điện trở 100 Ω và tụ 100 àF, đưa vào chõn 14 của IC.Mức điện ỏp ở chõn 14 được theo dừi để phỏt hiện mức bóo hũa ở IGBT.Nếu điện ỏp này lớn hơn 7V sau khi cú tớn hiệu điều khiển mở IGBT chứng tỏ có quá dòng điện, mạch xử lý logic khóa mềm sẽ phát tín hiệu khóa và tự động tăng điện trở đưa đến cực đến khoảng 500 Ω, lớn hơn 10 lần so với khi khóa mở thông thường.

          Hình 4.4:Cấu trúc phần cứng điều chế véctơ không gian dùng chíp SAB 80C166  Vi điều khiển này có 16 thanh ghi Capture/Compare được chia thành 8 cặp và từng cặp  có thể được gán cho  một trong hai thanh  ghi timer T0 hoặc T1.T0  và T1 là hai bộ đếm  tiếp  n
          Hình 4.4:Cấu trúc phần cứng điều chế véctơ không gian dùng chíp SAB 80C166 Vi điều khiển này có 16 thanh ghi Capture/Compare được chia thành 8 cặp và từng cặp có thể được gán cho một trong hai thanh ghi timer T0 hoặc T1.T0 và T1 là hai bộ đếm tiếp n

          MATLAB – SIMULINK

          Mô hình mô phỏng nghịch lưu PWM bằng phương pháp điều chế véctơ không gian

            Để thấy rừ được hoạt động của nghịch lưu SVM ta thực hiện xõy dựng mụ hỡnh mô phỏng bằng matlab- simulink. Chức năng của khối là chuyển đổi điện áp xoay chiều 3 pha hình sin từ hệ trục toạ độ abc sang hệ trục toạ độ -. Các giá trị dòng điện đo được trong hệ ba pha được biến đổi sang hệ toạ độ cố định α-β.

            Sau đó qua bộ Fcn ta tính giá trị véctơ điện áp quay Vref trong hệ tọa độ α-β, giá trị điện áp này được đưa vào đầu vào khối tính các khoảng thời gian. Sóng mang (xung tam giác) với một tần số khác được sử dụng để so sánh với Ta,Tb,Tc tùy vào tương quan của các đại lượng để điều khiển đóng mở các IGBT. Biên độ sóng mang biểu diễn chu kỳ điều biến,tần số sóng mang xác định tần số chuyển mạch IGBT.