Hướng dẫn thiết kế máy biến áp lò hồ quang

MỤC LỤC

TÍNH CHỌN ĐIỆN KHÁNG CHO MÁY BIẾN ÁP

Sau đây là bảng thống kê điện áp ngắn mạch của máy biến áp,của điện kháng và của mạng điện theo công suất của máy biến áp.(Bảng 22-1 tài liệu 1).

TÍNH TOÁN CÁC KÍCH THƯỚC CHỦ YẾU CỦA MÁY BIẾN ÁP

TÍNH CÁC ĐẠI LƯỢNG CƠ BẢN

Để xác định khoảng cách cách điện giữa các dây quấn, các phần dẫn điện khác và các bộ phận nối đất của máy biến áp cần phải biết các trị số điện áp thử của chúng.

THIẾT KẾ SƠ BỘ LỖI SẮT VÀ TÍNH TOÁN CÁC KÍCH THƯỚC CHỦ YẾU CỦA MÁY BIẾN ÁP

  • Tính toán lựa chọn phương án

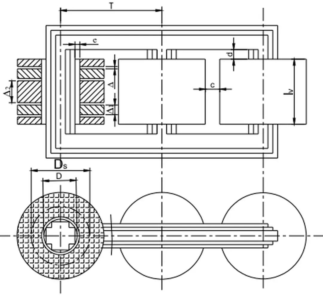
    THIẾT KẾ SƠ BỘ LỖI SẮT VÀ TÍNH TOÁN CÁC KÍCH THƯỚC. Hình 2.1: Kích thước cơ bản và khoảng cách cách điện chính của máy biến áp. D: đường kính trụ sắt lv: chiều cao dây quấn. Ds: đường kính trung bình của dây quấn. Trong tính toán thiết kế máy biến áp khi xác định được các kích thước cơ bản trên thì ta xác định được các kích thước khác cũng như hình dáng của máy biến áp. Có nhiều phương pháp để tìm hình dáng tối ưu của máy biến áp, trong số đó ta sử dụng phương pháp hệ số hình dáng β của học giả Tihomirov. Trị số β dùng để chỉ quan hệ giữa đường kính trung bình của các dây quấn Ds. với chiều cao của nó lv:. Với máy biến áp thường trị số này biến thiên trong khoảng rộng 1,0 đến 3,6. Với máy biến áp lò β=1,6÷2 và ảnh hưởng rất lớn tới đặt tính kỹ thuật và kinh tế của máy biến áp. Các số liệu xuất phát được chọn theo điện áp thử của các cuộn dây cao áp và hạ áp. -∆ là khoảng cách giữa cuộn cao áp và hạ áp. Với máy biến áp đang thiết kế chọn K=1,5. - Hệ số qui đổi từ trường tản: kr qui đổi từ trường tản thực tế về từ trường tản lý tưởng hệ số này thay đổi rất ít trong tính toán sơ bộ ta chọn kr =0,95. Chọn vật liệu. diện của gông lớn hơn của trụ với hệ số kG= G. Các khoảng cách cách điện chính. Dựa vào điện áp thử của cuộn cao áp và cuộn hạ áp, đối với dây quấn xen kẽ tra bảng 10 trang 12 tài liệu 3 ta có các khoảng cách cách điện chính. Thiết lập công thức tính khối lượng vật liệu tác dụng. Ta có những nhận xét sau:. - Từ cảm Bt được chọn tương ứng với mã hiệu thép được chọn. Vậy trong biểu thức đường kính D chỉ còn lạiβ là biến đổi trong phạm vi rộng quyết định sự thay đổi của đường kính D, ta đặt D=A.x. Tìm hình dáng tối ưu của máy biến áp tức là tìm β để cho máy biến áp có chi phí vật liệu tác dụng thấp nhất mà vẫn thoả mãn được các chỉ tiêu kỷ thuật. Khối lượng vật liệu tác dụng của máy biến áp. a) Khối lượng tỏc dụng của lừi sắt. Để thuận lợi cho việc tiêu chuẩn hoá các lá thép, theo kinh nghiệm khi thiết kế máy biến áp lò người ta thường chọn β=1,8.

    Hình 2.1: Kích thước cơ bản và khoảng cách
    Hình 2.1: Kích thước cơ bản và khoảng cách

    TÍNH TOÁN DÂY QUẤN MÁY BIẾN ÁP Lề

      THIẾT KẾ DÂY QUẤN HẠ ÁP

        Việc lựa chọn kết cấu dây quấn kiểu nào là phải tùy thuộc vào yêu cầu về vận hành và chế tạo trong nhiệm vụ thiết kế. Đối với máy biến áp lò có công suất lớn, để thuận lợi cho việc lấy đầu dây ra người ta thường bố trí xen kẽ cuộn dây sơ cấp và thứ cấp, cuộn dây xen kẽ còn có một số đặc điểm phù hợp với máy biến áp lò như: tản nhiệt tốt, điện kháng tản lớn, lực hướng tâm trong trường hợp ngắn mạch nhỏ do vậy đối với máy biến áp đang thiết kế ta chọn kiểu dây quấn xen kẽ. Vì máy biến áp lò có điện áp sơ cấp nhỏ (10KV) mà khoảng cách cách điện lớn nên để dễ bố trí phần dây quấn điều chỉnh điện áp và sắp xếp dây dẫn ra ta có thể bố trí cuộn cao áp ở gần xà mà vẫn đảm bảo cách điện giữa cuộn cao áp và xà.

        Dây quấn hạ áp được chia thành 3 nhóm, mỗi nhóm 6 cặp galét, cách nối các cặp bánh dây mỗi nhóm được mô tả trong hình 3.2 và cách nối các nhóm được mô tả trong hình 3.3.

        THIẾT KẾ DÂY QUẤN CAO ÁP Sơ đồ điều chỉnh điện áp

        Trong đó k=0,75 là hệ số kể đến sự che khuất bề mặt dây quấn do que nêm và các chi tiết cách điện khác. Thực hiện dây quấn xoắn ốc liên tục bằng dây dẫn chữ nhật, để dễ bố trí sao cho chiều rộng hướng kính của cuộn cao áp bằng cuộn hạ áp ta chọn dây quấn cao áp và hạ áp cùng loại. Vậy cuộn cao áp có tất cả 45 galét được chia thành 4 nhóm như hình 3.6, nhóm giữa là hai cuộn điều chỉnh E và G, nhóm trên và dưới là của cuộn F.

        Chèn thêm cách điện dày 9,2mm vào các galét có 5 vòng dây để có các galét có cùng chiều dày theo phương bán kính.

        TÍNH TOÁN NGẮN MẠCH

        XÁC ĐỊNH TỔN HAO NGẮN MẠCH

          Tổn hao ngắn mạch của máy biến áp là tổn hao trong dây quấn khi ngắn mạch một dây quấn còn dây quấn kia đặt điện áp ngắn mạch Un để cho dòng điện trong cả hai dây quấn đều bằng định mức. Như đã biết, một phần từ thông tản của máy biến áp khép mạch qua vách thùng dầu, các xà ép gông, các bu lông và các chi tiết bằng sắt khác. Đối với máy biến áp có dòng điện lớn như máy biến áp lò, đầu dây ra là các thanh đồng dẹt thì tổn hao vách thùng và các chi tiết kim loại khác được tính theo công thức 81 trang 30 tài liệu 3.

          Trong đó Kvỏ là hệ số phụ thuộc vào cách mắc cuộn hạ áp mà có quan hệ với giá trị M, với M là giá trị phụ thuộc vào cách đấu dây ở trong vỏ máy hay ở ngoài vỏ máy và dây quấn mắc ∆ hay Y.

          XÁC ĐỊNH ĐIỆN ÁP NGẮN MẠCH

            Thành phần điện áp ngắn mạch phản kháng là thành phần điện áp ngắn mạch rơi trên điện kháng tản của dây quấn cao áp và hạ áp. ∆m, ∆p là khoảng cách từ phần đồng này đến phần đồng khác giữa các galét cuộn cao áp và hạ áp. Trị số KR trong công thức 4.1 là hệ số Rogotski nó là hàm số đối với u và v u=hp.

            Vây sai lệch này không vượt quá giới hạn cho phép 5% dây quấn thiết kế đảm bảo yêu cầu tiêu chuẩn về điện áp ngắn mạch.

            TÍNH LỰC CƠ HỌC CỦA DÂY QUẤN MÁY BIẾN ÁP

              Ở dây quấn xen kẽ của máy biến áp lò do từ trường tản chủ yếu có phương ngang trục nên lực ngắn mạch chủ yếu có phương dọc trục, lực hướng kính rất nhỏ và có thể bỏ qua. Dòng điện ngắn mạch phía sơ cấp có giá trị lớn nhất ứng với trường hợp máy biến áp làm việc ở chế độ nặng nề nhất, lúc đó I1f=333,3A. Đối với cuộn dây xen kẽ lực tác dụng lên dây quấn chủ yếu là lực dọc trục, lực hướng kính không đáng kể và có thể bỏ qua.

              Vì lực tác dụng lên dây quấn cao áp và hạ áp là lực tương tác, tức là các cuộn dây hút và đẩy lẫn nhau do đó lực tác dụng lên cả hai cuộn dây này là bằng nhau.

              TÍNH TOÁN MẠCH TỪ VÀ TỔN HAO KHÔNG TẢI

              XÁC ĐỊNH KÍCH THƯỚC CỤ THỂ CỦA LếI SẮT

              Lv là chiều cao dây quấn, Lv=124 cm Khoảng cách giữa hai tâm trụ cạnh nhau. Trong đó: c là khoảng cách giữa dây quấn của hai pha cạnh nhau, c= 2 cm Tiết diện thuần thép của gông: tra bảng 42b tài liệu 2 ta được. Trong đó t =3 là số trụ sắt, St, Sg tiết diện thuần của trụ và của gông, lt chiều cao trụ, γ là khối lượng riêng của thép.

              TÍNH TỔN HAO KHễNG TẢI, DềNG ĐIỆN KHễNG TẢI VÀ HIỆU SUẤT CỦA MÁY BIẾN ÁP

                Trong đó kf là hệ số tổn hao phụ xét đến các yếu tố như Bt và Bg phân bố không đồng đều hoặc do công nghệ chế tạo các lá thép bị bavia, hay xếp không cùng chiều làm P0 tăng lên. Vậy tổn hao không tải của máy biến áp nằm trong giới hạn cho phép 5.2.2. Công suất từ hóa gồm ba bộ phần: phần trong gông, phần trong trụ và trong khe hở không khí.

                Sau khi tính được tổn hao không tải và công suất từ hóa ta tính được dòng điện không tải.

                THIẾT KẾ CUỘN KHÁNG

                • XÁC ĐỊNH CÁC ĐẠI LƯỢNG CƠ BẢN CỦA CUỘN KHÁNG

                  Tất cả các trụ cắt của cuộn kháng phải được tiếp đất ngoài ra các kết cấu cơ bản khác của nó đều giống với máy biến áp. Cuộn kháng chỉ được sử dụng khi sơ cấp của máy biến áp lò đấu tam giác, khi sơ cấp đấu sao cuộn kháng được loại bỏ theo sơ đồ điều chỉnh điện áp hình 3.5. Vì cuộn kháng được mắc nối tiếp với cuộn cao áp nên ta chọn mật độ dòng điện của kháng điện giống như của cuộn cao áp tức là σKĐ=3,3 A/mm2.

                  Chọn khoảng cách giữa các ga lét là 3mm Vậy tổng khe hở giữa các galét là 23.3=69 mm Tổng chiều cao dây quấn.

                  Hình 6.2: Sơ đồ đấu cuộn kháng
                  Hình 6.2: Sơ đồ đấu cuộn kháng

                  TÍNH TOÁN NHIỆT CỦA MÁY BIẾN ÁP

                  • TÍNH TOÁN THÙNG DẦU

                    Qua mỗi quá trình truyền đó thì nhiệt độ giảm dần, nghĩa là nó gây nên một lượng giảm nhiệt độ, kết quả là so với môi trường không khí xung quanh thì các bộ phận trong máy biến áp có một nhiệt độ chênh nào đó so với môi trường không khí xung quanh. Việc tính toán ở đây chủ yếu căn cứ vào yêu cầu tản nhiệt để thiết kế được một loại thùng thích hợp, sau đó kiểm tra lại xem với kết cấu thùng như vậy nhiệt độ chênh của các bộ phận của máy biến áp có đạt tiêu chuẩn nhà nước qui định không. Căn cứ vào kớch thước đó biết của lừi sắt, dõy quấn, để chọn cỏc khoảng cách cách điện tối thiểu từ dây dẫn ra đến các bề mặt của dây quấn, đến vách thùng và các bộ phận nối đất khác của máy biến áp.

                    Sau khi đã thiết kế được những kích thước cơ bản của thùng dầu, tính toán bề mặt bức xạ, bề mặt đối lưu của thùng cần phải kiểm tra lại nhiệt độ chênh thực tế của dây quấn và dầu đối với không khí.

                    Hình 6-1: Các khoảng cách tối thiểu bên trong thùng
                    Hình 6-1: Các khoảng cách tối thiểu bên trong thùng