Nguyên lý thiết kế kết cấu thân tàu

MỤC LỤC

NGUYÊN LÝ LÀM VIỆCNGUYÊN LÝ LÀM VIỆC

Theo quan điểm này, thân tàu xem như dầm tổng hợp thành mỏng, chịu tác Theo quan điểm này, thân tàu xem như dầm tổng hợp thành mỏng, chịu tác dụng hai lực ngược chiều là trọng lượng thân tàu và lực đẩy của nước, kết dụng hai lực ngược chiều là trọng lượng thân tàu và lực đẩy của nước, kết quả thõn tàu bị cong lờn hoặc vừng xuống, xuất hiện ứng suất, biến dạng làm quả thõn tàu bị cong lờn hoặc vừng xuống, xuất hiện ứng suất, biến dạng làm phá hủy kết cấu thân tàu. Tấm đáy và tấm boong chịu ứng suất kéo, nén lớn nhất lúc tàu bị uốn chung do nằm Tấm đáy và tấm boong chịu ứng suất kéo, nén lớn nhất lúc tàu bị uốn chung do nằm cách xa trục trung hòa nhất, chịu tải trọng cục bộ do áp lực nước hoặc hàng hóa tác cách xa trục trung hòa nhất, chịu tải trọng cục bộ do áp lực nước hoặc hàng hóa tác dụng vuông góc tấm.

HỆ THỐNG KẾT CẤU THÂN TÀUHỆ THỐNG KẾT CẤU THÂN TÀU

Các yêu cầu đối với kết cấu thân tàuCác yêu cầu đối với kết cấu thân tàu

 Kết cấu thân tàu phải đảm bảo được độ bền (gồm độ bền chung và độ Kết cấu thân tàu phải đảm bảo được độ bền (gồm độ bền chung và độ bền cục bộ), tính ổn định và độ cứng vững cần thiết để dưới tác dụng ngoại bền cục bộ), tính ổn định và độ cứng vững cần thiết để dưới tác dụng ngoại lực, kết cấu làm việc bình thường, không bị phá hủy, mất ổn định hay có lực, kết cấu làm việc bình thường, không bị phá hủy, mất ổn định hay có biến dạng vượt giới hạn cho phép. Có biện pháp gia cường kết cấu ở khu vực chịu tải lớn hay chấn động Có biện pháp gia cường kết cấu ở khu vực chịu tải lớn hay chấn động mạnh như : khu vực sóng đập ở mũi và đuôi tàu, khu vực chịu lực động mạnh như : khu vực sóng đập ở mũi và đuôi tàu, khu vực chịu lực động khi chân vịt làm việc, các vị trí có các thiết bị nặng, chổ có khoét lỗ, đáy khi chân vịt làm việc, các vị trí có các thiết bị nặng, chổ có khoét lỗ, đáy tàu chạy ở vùng nước cạn v…v… Đầu các kết cấu dọc và kết cấu ngang của tàu chạy ở vùng nước cạn v…v… Đầu các kết cấu dọc và kết cấu ngang của khung giàn tại khu vực này phải được hàn liên tục với tôn bao hay các kết khung giàn tại khu vực này phải được hàn liên tục với tôn bao hay các kết cấu ngang tại vị trí đó để tăng độ bền cục bộ.

CÁC PHƯƠNG PHÁP THIẾT KẾ KẾT CẤU THÂN TÀUCÁC PHƯƠNG PHÁP THIẾT KẾ KẾT CẤU THÂN TÀU

    Do hình dáng, yêu cầu và việc bố trí trên các tàu khác nhau thường không Do hình dáng, yêu cầu và việc bố trí trên các tàu khác nhau thường không giống nhau, nhất là đối với những tàu lớn hay tàu có tính năng đặc biệt nên giống nhau, nhất là đối với những tàu lớn hay tàu có tính năng đặc biệt nên các qui phạm đóng tàu không thể bao gồm hết tất cả và vẫn thiết kế theo các qui phạm đóng tàu không thể bao gồm hết tất cả và vẫn thiết kế theo phương pháp tính toán lý thuyết. Có độ chính xác khá cao, cho phép chọn được kết cấu hợp lý vừa đảm bảo Có độ chính xác khá cao, cho phép chọn được kết cấu hợp lý vừa đảm bảo đủ độ bền, vừa tối ưu về kinh tế, nhưng phức tạp nên thường chỉ áp dụng đối đủ độ bền, vừa tối ưu về kinh tế, nhưng phức tạp nên thường chỉ áp dụng đối với tàu làm việc theo nguyên lý mới, tàu có kích thước không bình thường và với tàu làm việc theo nguyên lý mới, tàu có kích thước không bình thường và yêu cầu đặc biệt về kết cấu.

    KHOẢNG CÁCH SƯỜNKHOẢNG CÁCH SƯỜN

      Ví dụ như không nên bố trí đường hàn đứng tại điểm giữa khoảng sườn mà nên Ví dụ như không nên bố trí đường hàn đứng tại điểm giữa khoảng sườn mà nên cách sườn (1/3 - 1/4) khoảng sườn, vì ứng suấ cục bộ tại khu vực này nhỏ và cách cách sườn (1/3 - 1/4) khoảng sườn, vì ứng suấ cục bộ tại khu vực này nhỏ và cách bố trớ như thế sẽ giảm đụù gồ ghề do mối hàn gõy ra và giảm độ vừng ban đầu nờn bố trớ như thế sẽ giảm đụù gồ ghề do mối hàn gõy ra và giảm độ vừng ban đầu nờn. làm tăng tính ổn định của tấm. làm tăng tính ổn định của tấm. Tránh để đầu các mối hàn nằm ở vị trí mặt cắt thay đổi hay bất lợi về mặt Tránh để đầu các mối hàn nằm ở vị trí mặt cắt thay đổi hay bất lợi về mặt keát caáu. Quy phạm quy định cụ thể các yêu cầu đối với đường hàn các tấm tôn bao Quy phạm quy định cụ thể các yêu cầu đối với đường hàn các tấm tôn bao nhử sau :. Góc giao nhau của hai đường hàn dọc tàu, còn gọi là mối hàn đối mép không Góc giao nhau của hai đường hàn dọc tàu, còn gọi là mối hàn đối mép không nhỏ hơn 60. nhỏ hơn 60oo, còn khoảng cách giữa các đường hàn dọc song song với nhau không , còn khoảng cách giữa các đường hàn dọc song song với nhau không được nhỏ hơn 200 mm. Đường hàn dọc song song với đường hàn góc nằm cách nhau lớn hơn 75 mm khi Đường hàn dọc song song với đường hàn góc nằm cách nhau lớn hơn 75 mm khi chiều dài đoạn hàn lớn hơn 2 m và lớn hơn 50 mm khi chiều dài đoạn hàn song chiều dài đoạn hàn lớn hơn 2 m và lớn hơn 50 mm khi chiều dài đoạn hàn song song nhỏ hơn 2 m. vùng đó), còn với đường hàn lắp ráp dọc, khoảng cách này lớn hơn 200 mm. Trường hợp tàu có sống chính liên tục, các đà ngang đáy được chia thành Trường hợp tàu có sống chính liên tục, các đà ngang đáy được chia thành từng đoạn nằm hai bên sống chính, kéo cho đến mạn và nối với sống chính từng đoạn nằm hai bên sống chính, kéo cho đến mạn và nối với sống chính bằng các mã liên kết nhưng nếu tỷ số giữa các cạnh dàn đáy lớn hơn 1,5 bằng các mã liên kết nhưng nếu tỷ số giữa các cạnh dàn đáy lớn hơn 1,5 -1,6 lần, khi đó các đà ngang đáy sẽ là dầm chịu lực chính nên thường -1,6 lần, khi đó các đà ngang đáy sẽ là dầm chịu lực chính nên thường được kéo dài liên tục trên suốt chiều rộng tàu, bản thành của sống chính được kéo dài liên tục trên suốt chiều rộng tàu, bản thành của sống chính bị cắt tại các đà ngang và hàn cứng vào bản thành đà ngang tức là sống bị cắt tại các đà ngang và hàn cứng vào bản thành đà ngang tức là sống chính không liên tục và chỉ gồm các đoạn nằm giữa các đà ngang đáy.

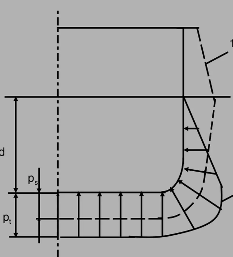
      Hình 3.1 : Quy luật phân bố các thành phần áp lực nước Hình 3.1 : Quy luật phân bố các thành phần áp lực nước
      Hình 3.1 : Quy luật phân bố các thành phần áp lực nước Hình 3.1 : Quy luật phân bố các thành phần áp lực nước

      KẾT CẤU KHUNG DÀN MẠN

      • Đặc điểm kết cấu

        Do khoảng cách giữa hai vách ngang thường lớn hơn chiều cao mạn nên hợp Do khoảng cách giữa hai vách ngang thường lớn hơn chiều cao mạn nên hợp lý nhất là chỉ bố trí cùng một kiểu sườn có kích thước đủ để đảm bảo an toàn lý nhất là chỉ bố trí cùng một kiểu sườn có kích thước đủ để đảm bảo an toàn cho các kết cấu, tức dàn mạn ở khoang hàng tàu vận tải chỉ bố trí sườn thường, cho các kết cấu, tức dàn mạn ở khoang hàng tàu vận tải chỉ bố trí sườn thường, không có sườn khỏe để đảm bảo không chỉ độ bền mà để tăng dung tích chứa không có sườn khỏe để đảm bảo không chỉ độ bền mà để tăng dung tích chứa hàng của khoang (hình 3.47a), còn nếu chiều cao, tức khoảng cách giữa khung hàng của khoang (hình 3.47a), còn nếu chiều cao, tức khoảng cách giữa khung dàn đáy và dàn boong tàu khá lớn thì cần bố trí thêm một sống dọc mạn 4 nằm dàn đáy và dàn boong tàu khá lớn thì cần bố trí thêm một sống dọc mạn 4 nằm tại vị trí giữa khoảng cách đó (hình 3.47b). Nếu khoảng cách giữa hai vách ngang giới hạn dàn mạn gần bằng chiều cao từ Nếu khoảng cách giữa hai vách ngang giới hạn dàn mạn gần bằng chiều cao từ đáy đến boong thì ngoài sống mạn, cần thêm các xà dọc mạn và các sườn khỏe đáy đến boong thì ngoài sống mạn, cần thêm các xà dọc mạn và các sườn khỏe (hình 3.47c), với sườn khỏe, kéo theo là xà ngang boong khỏe được đặt cách ba (hình 3.47c), với sườn khỏe, kéo theo là xà ngang boong khỏe được đặt cách ba hay bốn khoảng sườn để chống lực tác dụng từ bên ngoài, nhất là tàu chạy ở hay bốn khoảng sườn để chống lực tác dụng từ bên ngoài, nhất là tàu chạy ở vùng cực khi đối đầu với băng.

        Hình 3.46 : Đặc điểm kết cấu khung dàn mạnHình 3.46 : Đặc điểm kết cấu khung dàn mạn
        Hình 3.46 : Đặc điểm kết cấu khung dàn mạnHình 3.46 : Đặc điểm kết cấu khung dàn mạn

        KẾT CẤU KHUNG DÀN BOONGKẾT CẤU KHUNG DÀN BOONG

        • Đặc điểm kết cấu khung dàn boongĐặc điểm kết cấu khung dàn boong
          • Đặc điểm các chi tiết kết cấu chủ yếu của phần đuôiĐặc điểm các chi tiết kết cấu chủ yếu của phần đuôi

            Tùy theo công dụng của từng loại tàu, cách bố trí các boong và thiết bị trên boong Tùy theo công dụng của từng loại tàu, cách bố trí các boong và thiết bị trên boong khác nhau tuy nhiên cần lưu ý nguyên tắc bố trí sao cho có đủ chỗ sinh hoạt, lối đi khác nhau tuy nhiên cần lưu ý nguyên tắc bố trí sao cho có đủ chỗ sinh hoạt, lối đi lại dễ dàng và an toàn, đủ chỗ chứa hàng và các trang thiết bị, thao tác bốc dỡ lại dễ dàng và an toàn, đủ chỗ chứa hàng và các trang thiết bị, thao tác bốc dỡ hàng hóa trên tàu được thuận lợi v.v… Bố trí người và hàng phải đảm bảo tàu luôn hàng hóa trên tàu được thuận lợi v.v… Bố trí người và hàng phải đảm bảo tàu luôn ở tư thế ổn định, cân bằng dọc và cân bằng ngang theo các tiêu chuẩn đã được ở tư thế ổn định, cân bằng dọc và cân bằng ngang theo các tiêu chuẩn đã được quy định cụ thể trong các Quy phạm. Keát caáu chuû yeáu cuûa phaàn Keát caáu chuû yeáu cuûa phaàn mũi là sống mũi (stem) nằm mũi là sống mũi (stem) nằm phía trước thân tàu và là nơi gặp phía trước thân tàu và là nơi gặp nhau của hai dải tôn mạn, tiếp nhau của hai dải tôn mạn, tiếp sau sống mũi là các kết cấu sau sống mũi là các kết cấu quan trọng hình thành phần mũi quan trọng hình thành phần mũi như các sườn ngang (pating như các sườn ngang (pating beam) và đà ngang đáy (floor) beam) và đà ngang đáy (floor) đặc biệt khỏe bố trí ở khu vực đặc biệt khỏe bố trí ở khu vực mũi, các xà dọc mạn chuyển mũi, các xà dọc mạn chuyển thành nẹp nằm ngang (panting thành nẹp nằm ngang (panting stringer) đủ cứng vững để tăng stringer) đủ cứng vững để tăng độ bền, vách lửng (wash độ bền, vách lửng (wash bulkhead) và tiếp đến là vách bulkhead) và tiếp đến là vách choáng va (collision bulkhead), choáng va (collision bulkhead), trước vách chống và là thùng trước vách chống và là thùng đựng xích neo (chain lock) (hình đựng xích neo (chain lock) (hình 3.100).

            Hình 3.66 : Kết cấu khung dàn boong Hình 3.66 : Kết cấu khung dàn boong  theo heọ thoỏng ngang
            Hình 3.66 : Kết cấu khung dàn boong Hình 3.66 : Kết cấu khung dàn boong theo heọ thoỏng ngang

            KẾT CẤU KHUNG DÀN VÁCHKẾT CẤU KHUNG DÀN VÁCH

              - Vách chống va đặt ở khoảng cách lớn hơn 0,05Lff hoặc 10 m (lấy giá trị hoặc 10 m (lấy giá trị nhỏ) - Vách chống va phải được kéo dài đến tận tầng boong cao nhỏ) - Vách chống va phải được kéo dài đến tận tầng boong cao nhất nằm trên nó và có độ bền rất cao nhằm chống sự va đập và bảo nhất nằm trên nó và có độ bền rất cao nhằm chống sự va đập và bảo vệ cho tàu khi bị tai nạn.  Tùy chức năng có thể chia vách tàu thành vách kín nước và vách không Tùy chức năng có thể chia vách tàu thành vách kín nước và vách không kín nước, trong đó vách kín nước (hoặc kín hơi, kín dầu) lại được chia thành kín nước, trong đó vách kín nước (hoặc kín hơi, kín dầu) lại được chia thành vách chịu áp lực thường xuyên của hàng lỏng và vách chỉ chịu áp lực hàng vách chịu áp lực thường xuyên của hàng lỏng và vách chỉ chịu áp lực hàng lỏng khi xảy ra sự cố.

              Hình 3.145 mô tả cách bố trí vách ngăn ngang và vách ngăn dọc trên tàuHình 3.145 mô tả cách bố trí vách ngăn ngang và vách ngăn dọc trên tàu
              Hình 3.145 mô tả cách bố trí vách ngăn ngang và vách ngăn dọc trên tàuHình 3.145 mô tả cách bố trí vách ngăn ngang và vách ngăn dọc trên tàu

              QUY TRÌNH TÍNH CÁC KẾT CẤU THÂN TÀU THEO YÊU CẦU QUY QUY TRÌNH TÍNH CÁC KẾT CẤU THÂN TÀU THEO YÊU CẦU QUY

                Quá trình xây dựng các công thức tính gần đúng và trình tự thiết kế kết cấu Quá trình xây dựng các công thức tính gần đúng và trình tự thiết kế kết cấu thân tàu theo các yêu cầu của quy phạm thường được thực hiện theo sơ đồ như thân tàu theo các yêu cầu của quy phạm thường được thực hiện theo sơ đồ như treân hình.  Yêu cầu độ bền dẫn đến điều kiện giá trị ứng suất Yêu cầu độ bền dẫn đến điều kiện giá trị ứng suất σσ xuất hiện trong kết xuất hiện trong kết cấu trong mọi trường hợp không vượt quá giá trị cho phép [.